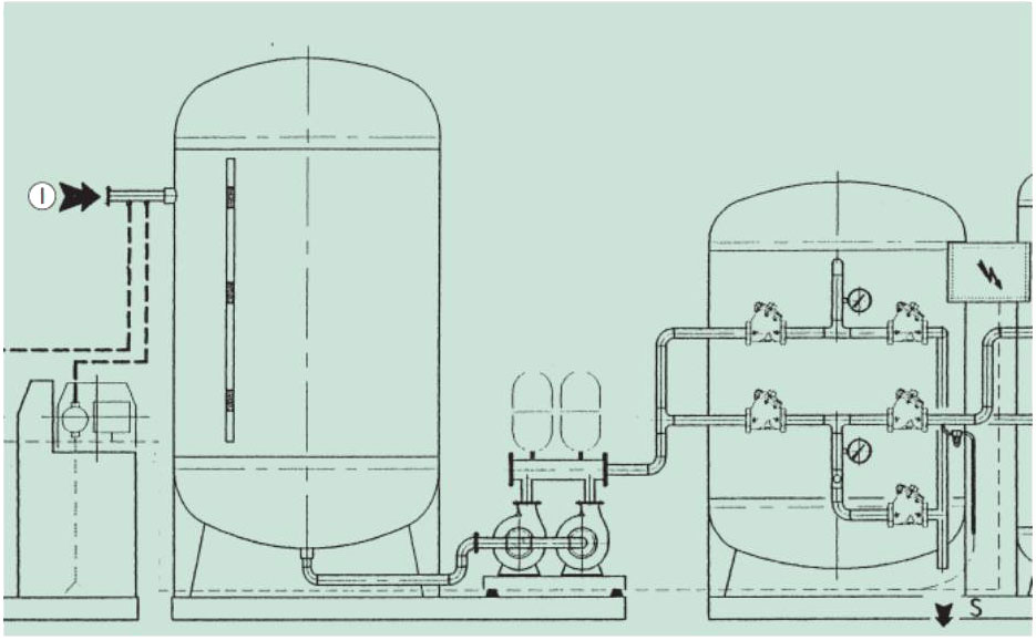
Deferrizzatori

Il filtro deferizzatore-demanganizzatore ha la funzione di eliminare il ferro e il manganese disciolti nell'acqua sotto forma di sali.
Esso è costituito da un serbatoio cilindrico contenente il materiale filtrante DITAL-M (pirolusite).
L'acqua da trattare viene saturata di ossigeno dal preposto eiettore che aspira aria filtrata dall'atmosfera e successivamente attraversa il letto filtrante DITAL-M e subisce l’ossidazione del ferro e manganese, i quali precipitano sul letto filtrante che ha la proprietà catalizzatrice nei riguardi nell'azione ossidativa.
Dopo aver trattato un determinato volume d’acqua (portata ciclica), ovvero quando la capacità ossidativa del DITAL-M è esaurita, il letto deve essere rigenerato; dopodichè il filtro è pronto ad iniziare un nuovo ciclo.


 

Caratteristiche di serie dell'impianto:

• Costruzione in acciaio di qualità elettrosaldato ai fondi superiori e inferiori, completata di sostegni.
• Protezione interna assicurata da strato epossidoico antiacido o zincatura a bagno.
• Protezione esterna con due mani di minio e verniciatura.
• Distributori superiori dell'acqua.
• Distributori inferiori per impedimento uscita materiale filtrante.
• Batteria di comando per rigenerazione ed esercizio completa di tubazioni esterne e interne in PVC o acciaio zincato.


Optional:

• Impianti tipo duplex.
• Skid metallico di sostegno.
• Funzionamento Automatico o semiautomatico.
• Messa in marcia dell'impianto.
• Stazione di dosaggio sterilizzante.

I nostri contatti

Richiedi informazioni

  1. Nome:*
    valore non valido
  2. Email:*
    valore non valido
  3. Telefono:*
    valore non valido
  4. Città*
    Valore non valido
  5. Messaggio:*
    valore non valido
  6. Cliccando su "INVIA" dichiaro di aver preso visione dell' Informativa sulla privacy
  7. Valore non valido
Personalizza le tue preferenze sui cookie